Product image for NVENT EFS GPECEDK0242Q036 ELECTRODE
Image thumbnail 0
Image thumbnail 1
Image thumbnail 2

Email

NVENT EFS GPECEDK0242Q036 ELECTRODE

Manufacturer: Erico, Inc | Catalog # GPECEDK0242Q036 | Cooper Electric Part # 1252132

$777.04 /ea
ea
Log in or register to view your price, purchase history, and more!
Out of stock, please contact your sales representative for availability, pricing and lead times
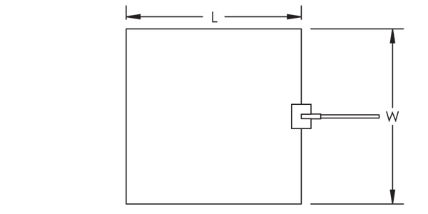
Copper Ground Plate, Bare, 24" x 24", End Pigtail, 4/0 Stranded, 1/8"

Technical Information

Material
Copper

Packaging

Standard Packaging Qty
1 pc

Manufacturer Information

Brand
nVent Erico

General Product Info

12-Digit UPC
782856713876
Finish
Bare
GTiN
00782856713876
Product UPC
78285671387
Weight
16.10 kg

Dimensions

Length
24 Inch
Thickness
1/8 in
Width
24 in

Certifications and Compliance

CA Prop65 Warning
This product can expose you to chemicals including lead, which is known to the State of California to cause cancer and birth defects or other reproductive harm. For more information go to www.P65Warnings.ca.gov.
Features
  • Provides a large surface area to dissipate current into the ground
  • Available in a variety of sizes and pigtail configurations



Compare